

ПАО «МТС-Банк» объявляет о проведении Запроса на изучение информации (RFI) по выбору Провайдера для организации корпоративной кофейни на территории ПАО «МТС-Банк» по адресу: г. Москва, пр-т Андропова, 18к.1, БЦ «Ньютон» (1 этаж) и приглашает поставщиков подавать свои предложения.
Общая информация:
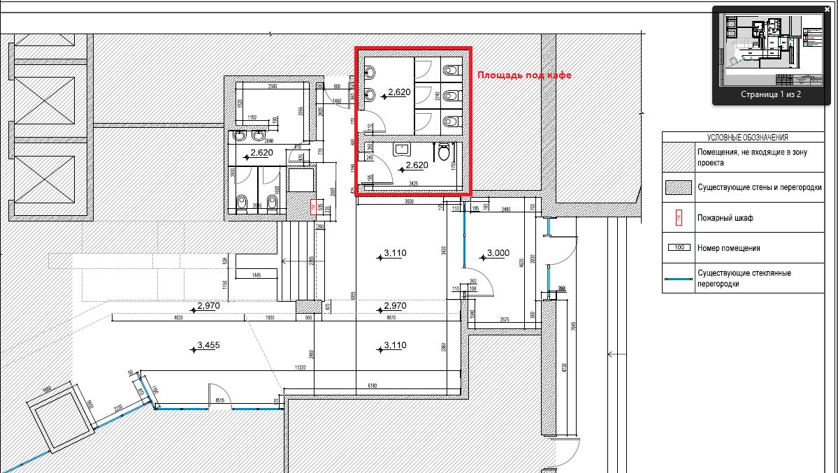
Площадь помещения – 16 м2 (план помещения прилагается).
Минимальные требования к меню:
Напитки: Эспрессо, Американо, Капучино, Латте, Раф, Какао, Чай листовой в ассортименте (не менее 4 видов), сезонные напитки (лимонады, соки, кофе и др.), топпинги в ассортименте, виды молока в ассортименте
Продукция: сэндвичи, пироги, кексы, круасаны (в ассортименте, не менее 5 видов выпечки)
Справочно: соседство с CoffePoint
Обязательные требования к размещению кофейни:
1. Оказание услуг в соответствии с нормами и требованиями действующих нормативно-правовых актов РФ, строгое соблюдение действующих санитарных правил;
2. Кобрендинг зоны кофейни за счет Провайдера;
3. Создание и реализация дизайн-проекта и технического проекта за счет Провайдера (в т.ч. осуществление требуемых работ по косметическому ремонту);
4. Закупка оборудования и мебели за счет Провайдера;
5. Оплата аренды помещения (ориентировочно 38 000,00 руб. с НДС/мес.) за счет провайдера (в т.ч. компенсация расходов за воду, электроэнергию по факту);
6. Прием платежей посредством пластиковых карт международных платежных систем (VISA и MasterCard);
7. Со стороны Провайдера должна быть организована демонстрация и дегустация продукции в одной из действующих кофеин Провайдера для экспертной группы со стороны Банка в количестве не более 10 чел. (кофейня д.б. аналогична той, которая будет организована в помещении ПАО «МТС-Банк»).
Дата начала оказания услуг не позднее – 10 августа 2019г. (с учетом срока на создание и реализацию дизайн-проекта и технического проекта).
Обязательные требования к Провайдеру:
Опыт оказания аналогичных услуг за последние 3 года, в т.ч. не менее 3-х аналогичных проектов для Клиентов, осуществляющих свою деятельность в Москве и ближайшем Подмосковье (информацию необходимо подтвердить в простой письменной форме с указанием наименования клиента, статуса договора (например: инициирован/в процессе исполнения/завершен) ФИО, телефон, e-mail представителя клиента, отзывы заказчиков – копии, заверенные руководителем организации).
Обязательные требования к качеству продукции (кофе):
1. Сорт – 100% арабика
2. Помол кофе непосредственно перед приготовлением
В своем предложении Поставщику необходимо отразить:
1. Соответствие всем обязательным требованиям Банка, в т.ч. приложить скан-копии подтверждающих документов.
2. Стоимость всего ассортимента кофейни попозиционно
3. Требуемую мощность для работы оборудования
4. Подробную презентацию предлагаемого формата кофейни, в т.ч. описание компании и опыта работы.
Ожидаем Ваше Коммерческого предложение не позднее 03.07.2019г. на эл. адрес zakupki@mtsbank.ru
Важно! До указанной даты должно быть организовано посещение одной из кофеин Провайдера для дегустации.
Организатор RFI:
Отдел контроля закупок ПАО «МТС-Банк»
Адрес: г. Москва, пр-т Андропова, д.18, к.1
Ответственный: Бороздина Ирина
e-mail: zakupki@mtsbank.ru
Телефон/факс: +7(495) 921-28-00 (доб.1-34-63)
Настоящая процедура RFI не является конкурсом. Уведомление о проведении RFI не является публичной офертой Заказчика. Заказчик не несет никаких обязательств перед поставщиками, принявшими участие в данной процедуре.